Purpose in Practice|讓使命成為日常的工作場域
本空間以「Purpose in Practice」為設計主題,
回應組織在日常運作中,如何將價值、方向與行動整合於同一個工作場域之中。
設計並非僅止於效率或美學,
而是透過清晰的工作結構與團隊導向的空間配置,
支持成員在協作中彼此對齊、在工作中保持方向感。
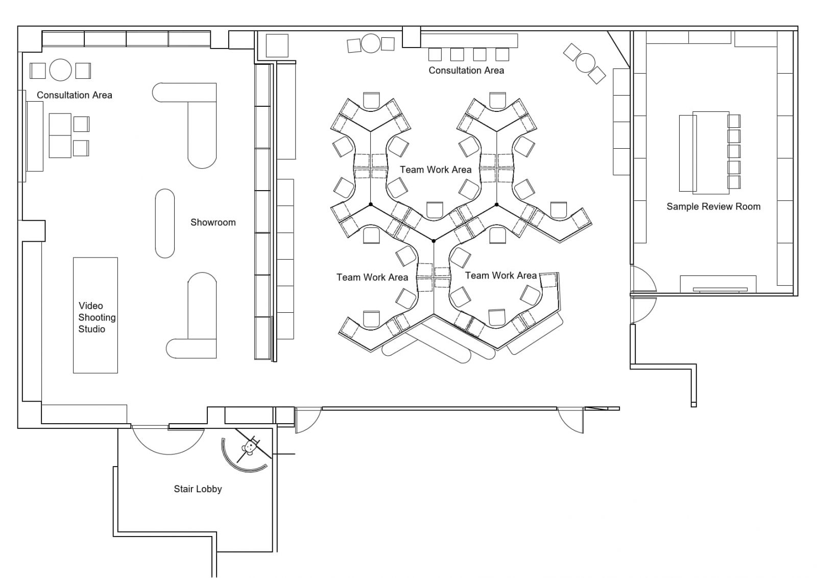
以工作站為核心的布局策略,
讓團隊運作形成穩定而有秩序的節奏,
降低溝通成本、提升決策效率,
使每一位成員都能在共享目標下,發揮其角色價值。
開放與界線並存的空間語彙,
回應組織對「專注」與「連結」的雙重需求。
透過半穿透隔屏、光線層次與自然元素的引入,
營造出一個既理性又具溫度的工作環境。
此設計呈現的是一種穩定、可持續、可擴展的工作模式,
讓組織能在日常運作中,持續實踐其核心使命與價值。
.jpg)
.jpg)
.jpg)
.jpg)
.jpg)
.jpg)
.jpg)
.jpg)